Разработка шлакообразующих смесей для разливки стали на МНЛЗ МК «Азовсталь»
Н. Ф. Анищенко, В. В. Кислица, О. Б. Исаев*, Д. А. Галинков, А. П. Кривенко, Ю. Г. Мороз
ОАО «НПП "Техмет"», Донецк
*ОАО «МК „Азовсталь“», Мариуполь
Представлены результаты разработки шлакообразующих смесей (ШОС) для разливки непрерывнолитых слябов, в т. ч. изложена методика определения физических свойств шлакообразующих смесей, результаты промышленного внедрения смесей при производстве низколегированных сталей перитектического класса на МНЛЗ криволинейного типа и качественные показатели листового проката.
Представлено результати розробки шлакоутворювальних сумішей для розливання безперервнолитих слябів, в т. ч. викладено методику визначення фізичних властивостей шлакоутворювальних сумішей, результати промислового впровадження сумішей при виробництві низьколегованих сталей перитектичного класу на МБЛЗ криволінійного типу і якісні показники листового прокату.
The results of work on the development of slag-forming mixtures for steel slabs continuous casting, including the method of determining the physical properties of slag-forming mixtures, also the results of industrial application of mixtures in the production of low-alloy steels with continuous casting of peritectic class and the quality of rolled plates.
Конвертерный цех ОАО «МК „Азовсталь“» в своем составе имеет четыре слябовых двухручьевых МНЛЗ, из которых три – криволинейного типа и одна – с вертикальным участком. Основные технические характеристики криволинейных МНЛЗ приведены в табл. 1
Таблица 1 - Технические характеристики МНЛЗ

Постановка задачи ОАО «НПП "Техмет"» и Донниичермет в конце 2007 г. была обусловлена необходимостью разработки составов смесей для защиты зеркала металла в кристаллизаторах МНЛЗ «МК „Азовсталь“», обеспечивающих сохранение служебных свойств при длительных сроках хранения, уменьшение отсортировки листового проката широкого марочного сортамента (по дефектам «плена», «УЗК»); а также выводом из производства на «МК „Азовсталь“» собственного участка по производству шлакообразующих смесей ШОС-5М.
В ходе настоящей работы использовались смеси на основе плавленых флюсов ШОС-Т-2 (ТУ У 23431197.003-99 «Смеси шлакообразующие рафинировочные») различного состава, регуляторов скорости плавления (углеродсодержащих материалов – УСМ) и веществ, корректирующих скорость плавления и свойства жидкой шлаковой фазы в процессе ее остывания в зазоре между корочкой сляба и охлаждаемой стенкой кристаллизатора [2].
Исследование вязкостных характеристик расплавов ШОС проводилось на усовершенствованном высокотемпературном вибрационном вискозиметре.
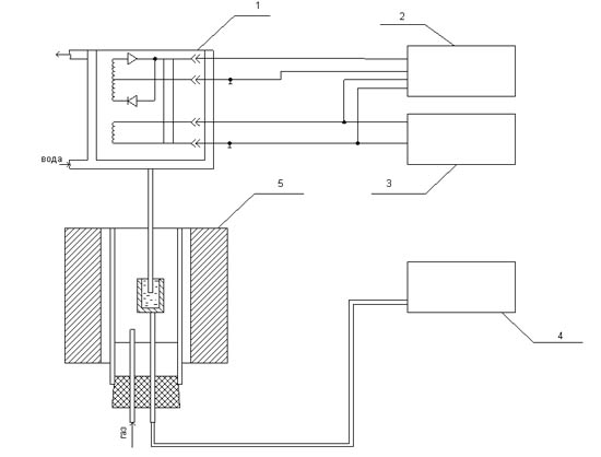
За основу был взят амплитудно-амплитудный вариант вибрационного метода измерения вязкости с выходом на максимальную амплитуду, что позволило саму колеблющуюся систему использовать для стабилизации частоты силы, возбуждающей колебания. Кроме того, не надо заботиться о подгонке резонансных параметров системы и беспокоиться об их строгом постоянстве. Таким образом, в амплитудно-амплитудном варианте вся погрешность измерения вязкости определяется погрешностью в определении амплитуды колебаний. Относительная погрешность в определении абсолютных значений динамической вязкости (n) составляет + или - 3 %. Блок-схема высокотемпературного вискозиметра представлена на рис. 1 [3].

Рис. 1. Блок-схема высокотемпературного вискозиметра: 1 – вибратор, 2 – усилитель-ограничитель, 3 – милливольтметр В7-40/3, 4 – ПП-63, 5 – печь Таммана
Эффективная экранировка вибрационной системы позволяет измерять вязкость расплавов без выключения нагревательной печи (то есть с необходимой скоростью изменения температуры). Термостатирование же позволяет сохранить постоянными как механические характеристики пружинной подвески, так и электромагнитные параметры вибратора и стабилизировать резонансную частоту всей вибрационной системы прибора.
Для калибровки прибора в качестве калибровочной жидкости были использованы растворы глицерина в дистиллированной воде. Температура калибровочных растворов задавалась термостатом.
Измерение вязкости ШОС производились в молибденовом тигле, помещенном в изотермическую зону печи Таммана с помощью вольфрамового штока диаметром 1,2 мм, L = 250 мм в атмосфере аргона. После изотермической выдержки расплавленного шлака при 1580 oС в течение 30 мин. замеры вязкости проводились в режиме охлаждения со скоростью 4 oС/мин до полного затвердевания шлака с фиксацией соответствующей температуры.
Важно отметить, что измерение вязкости расплавов из смеси, содержащей свободный углерод, представляет значительную трудность. При расплавлении смеси в инертной атмосфере углерод всплывает и скапливается на поверхности шлака, искажая истинное значение вязкости.
Учитывая, что в кристаллизаторе углерод выгорает и на зеркале металла находится жидкая шлаковая прослойка с минимальным содержанием углерода, исходные смеси перед проведением измерений отжигались в окислительной среде при 600 oС в течение 4 ч, что позволило снизить содержание углерода к минимуму (< 0,5 %).
Для проверки работы установки и правильности выбранной методики испытывали смеси импортного производства с декларируемыми производителем химическим составом и вязкостью.
Новизна работы состоит в выборе и отработке метода подхода к разработке конкретных ШОС. Исходя из условий работы ШОС (тип кристаллизатора, скорость разливки, сортамент разливаемой стали и т. д.) моделируется шлакообразующая смесь с определенным комплексом физико-химических свойств, которые варьируются подбором флюсов, углеродсодержащих материалов, активных разжижжителей и «минерализаторов» с целью оптимизации смазочных свойств и обеспечения стабильности теплоотвода от корочки сляба в первом (высокотемпературном) интервале остывания металла.
На основании ранее проведенных исследований для определения коэффициентов вязкости были выбраны базовый флюс ШОС-Т-2 с основностью 0,85 (химический состав молотого флюса ШОС-Т-2 приведен в табл. 2) и модельные смеси ШОС-Т-4-2, некоторые из которых приведены в табл. 3.

Кривые вязкости шлаковых расплавов вышеперечисленных смесей приведены на рис. 2.

Рис. 2. Политермы вязкости расплавов некоторых вариантов ШОС-Т-4-2
На основании проведенных физико-химических исследований предварительно была выбрана смесь ШОС-Т-4-2-аз-З, в дальнейшем именуемая ШОС-Т-4-2(З). Химический состав шлакообразующей смеси ШОС-Т-4-2(З) представлен в табл. 4.
Таблица 4 - Химический состав шлакообразующей смеси ШОС-Т-4-2(З)

Шлакообразующая смесь марки ШОС-Т-4-2(З) для кристаллизатора МНЛЗ проходила испытания на МНЛЗ криволинейного типа № 3-5 конвертерного цеха «МК „Азовсталь“». В большинстве случаев смесь ШОС-Т-4-2(З) использовалась на одном из ручьев МНЛЗ (впоследствии – на обоих ручьях), на другом ручье применялась порошкообразная смесь ШОС-5М собственного производства «МК „Азовсталь“» или импортные, в ряде случаев производили смену типа смеси по ручьям в процессе разливки серии плавок.
Результаты опытно-промышленных испытаний шлакообразующей смеси ШОС-Т-4-2(З), серийной смеси ШОС-5М и смесей иностранного поставщика приведены на рис. 3.

Рис. 3. Отсортировка металла, разлитого под шлакообразующими смесями различных производителей: УЗК; плена; итого
Удельный расход опытной смеси в анализируемый период составил (0,65…0,70) кг/т стали, что аналогично расходу серийно применяемой ШОС-5М и смесям зарубежных производителей.
Замечаний по работе смеси ШОС-Т-4-2(З), приведших к нестабильной работе оборудования МНЛЗ или созданию аварийных ситуаций, не выявлено. На основании опытно-промышленных исследований было принято решение о проведении промышленных испытаний технологии применения шлакообразующих смесей различных производителей.
Сравнительные данные по результатам повторных испытаний ШОС-Т-4-2(З) и смесей других производителей приведены в табл. 5.
Таблица 5 - Средние данные по результатам прокатки опытных и сравнительных слябов

Из анализа полученных результатов отсортировки металла было принято решение об изготовлении последующих партий смеси ШОС-Т-4-2, химический состав которых соответствовал следующим требованиям, %мас.: CaO – 36,0 (+,- 1,5 % абс.); SiO2 – 33,0 (+,- 1,5 % абс.); F – 7,0 (+,- 1 % абс.); C – 10,0 (+,- 1 % абс.); MgO – 3,0 (+,- 1 % абс.); Al2O3 – 3,0 (+,- 1 % абс.); Na2O + K2O – 6,5 (+,- 1 % абс.).
Необходимо отметить высокую гибкость технологии изготовления ШОС-Т-4-2, которая позволяет достаточно точно получать заданный химический состав шлакообразующей смеси.
Постоянство химического состава изготавливаемых шлакообразующих смесей гарантирует постоянство их физических свойств – вязкости, температуры плавления и поверхностного натяжения на межфазной границе «шлак-металл». ШОС-Т-4-2(З) имеет стабильные значения по основным химическим составляющим. С применением смеси ШОС-Т-4-2(З) на МНЛЗ № 3-5 «МК „Азовсталь“» в последнее время отлито около 1500 плавок широкого марочного сортамента. В процессе применения смеси по визуальной оценке установлено, что характер поведения смеси на зеркале металла в кристаллизаторе не изменился, расход смеси составил в среднем (0,65…0,70) кг/т стали. Замечаний технологического персонала по работе смеси в кристаллизаторе не отмечено. На рис. 4 и 5 представлены данные отсортировки металла поточного производства.

Рис. 4. Отсортировка листового проката по дефектам сталеплавильного производства: УЗК; дефекты; всего
Из рис. 4 видно, что индекс отсортировки металла, отлитого под ШОС-Т-4-2(З) меньше индекса отсортировки металла, отлитого под смесями импортного производства.

Рис. 5. Отсортировка листового проката низколегированных марок стали по дефектам сталеплавильного производства: импортные ШОС; ШОС Т-4
Как видно из рис. 5, индекс отсортировки на ответственных марках стали 09Г2С, Х70, 70MTLTV, 17Г1СУ, отлитых под ШОС-Т-4-2(З) меньше индекса отсортировки данного металла, отлитого под импортной смесью на 0,07…0,47 относительных единиц.
Сравнительный анализ применения ШОС-Т-4-2(З) и смесей импортного производства будет продолжен на углеродистых сталях перитектического класса и группе низкокремнистых марок стали.
Выводы
- На криволинейных МНЛЗ под шлакообразующей смесью ШОС-Т-4-2(З) отлито более 500 000 т металла.
- Промышленные испытания ШОС-Т-4-2(З) показали, что смесь имеет стабильный химический состав, что гарантирует постоянство ее физических свойств – вязкости и температуры плавления.
- Применение смеси ШОС-Т-4-2(З) показало положительные результаты на широком марочном сортаменте. Индекс отсортировки металла, отлитого под ШОС-Т-4-2(З) меньше индекса отсортировки металла, отлитого с применением смесей импортного производства.
- Шлакообразующая смесь ШОС-Т-4-2(З) внедрена в поточное производство на МНЛЗ криволинейного типа при разливке широкого марочного сортамента.
Литература
- IISI: Steel Statistical Yearbook 2005, [Hrsg.:] Intern. Iron and Steel Inst., Committee on Economic Studies. – Brussel, Belgien, 2005. – S. 15-16.
- Отчет о научно-исследовательской работе «Разработка и освоение технологии комплексной защиты зеркала металла в промежуточных ковшах и кристаллизаторах МНЛЗ с использованием теплоизолирующих, шлакообразующих и рафинировочных смесей с оптимизацией их рафинировочных свойств».
- Лидефельт Х., Хассельстром П. Характеристики рабочих свойств шлакообразующих смесей для непрерывной разливки стали. Материалы международного конгресса. – М.: Металлургия, 1987. – 224 с.