Расчет энергосиловых параметров и модельные исследования стопорной системы промежуточного ковша МНЛЗ
Еронько С.П., Ошовская Е.В., Орлов И.А., Бабенко В.С.
ДонНТУ
Поддержание постоянства уровня жидкой стали в кристаллизаторе МНЛЗ, как известно, является одним из главных требований технологии получения качественной непрерывнолитой стальной заготовки [1]. Поэтому стабилизация объемного расхода стали, поступающей из промежуточного ковша в кристаллизатор, стала особо актуальной технологической задачей, решаемой в условиях литья заготовок методом «плавка на плавку» [2]. Резкое повышение числа плавок, разливаемых серийно, потребовало в свою очередь активизации работ, связанных с созданием разливочных устройств, позволяющих в совокупности с системой автоматического управления обеспечить устойчивое функционирование высоко-производительных машин непрерывного литья заготовок при максимально возможных скоростях вытягивания слитка из кристаллизатора [3].
Несмотря на многообразие технических решений, заложенных в разливочные устройства промежуточных ковшей, их можно разделить на две основные группы, включающих стопорные и шиберные системы.
Оборудование промежуточных ковшей скользящими затворами различного конструктивного исполнения стало возможным благодаря освоению выпуска огнеупорных плит высокого качества [4]. Достигнутые успехи при использовании разливочных устройств шиберного типа подтверждают целесообразность продолжения работ, направленных на расширение их применения в данной области [5]. Однако в обозримом будущем при непрерывной разливке стали закрытой струей регулирование расхода металла, истекающего из промежуточного ковша в кристаллизатор, будут выполнять с помощью стопорных систем.
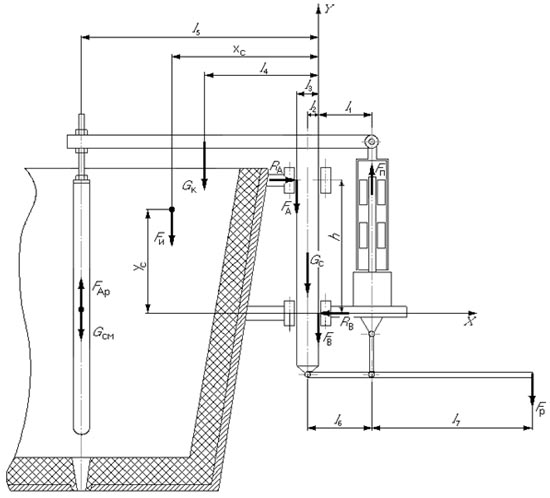
Стопорная система промежуточного ковша МНЛЗ включает огнеупорный стопор-моноблок, посредством резьбового соединения закрепленный на конце консоли, жестко связанной с подвижной стойкой, размещенной в 2-х направляющих втулках (рис.1) или роликовых опорах (рис.2) с возможностью вертикального возвратно-поступательного перемещения с помощью гидравлического (реже электромеханического) привода при работе в автоматическом режиме, а в случае необходимости перехода на ручное управление благодаря рычажному или реечному механизмам.

Рис.1. Расчетная схема для определения энергосиловых параметров стопорной системы с электромеханическим приводом
Следует отметить, что до настоящего времени специалисты не пришли к единому мнению относительно критериев выбора компоновочной схемы стопорной системы промковша МНЛЗ. Несмотря на преобладание использования гидравлического привода в качестве исполнительного механизма, имеющего ряд несомненных преимуществ, в последних разработках известных зарубежных фирм «Техноап» (Россия), SERT (Франция) предпочтение отдано электромеханическим устройствам, преобразующим вращательное движение вала электродвигателя постоянного тока в поступательное перемещение несущей стойки разливочного устройства. В качестве весомых аргументов, подтверждающих целесообразность применения подобных систем, приводятся факты устранения пожарной опасности и снижения в 10 – 20 раз расходов на обслуживание в сравнении с гидравлическим приводом [6].

Рис. 2. Расчетная схема для определения энергосиловых параметров стопорной системы с гидравлическим приводом
При сопоставительной оценке достоинств и недостатков известных стопорных систем необходимо учитывать идентичность условий их применения, а также обеспечиваемые параметры взаимодействия звеньев, образующих кинематические пары, входящие в кинематическую структуру преобразующего механизма. Поэтому получение зависимостей для определения энергосилового баланса изучаемых стопорных систем имеет важное практическое значение, поскольку позволит теоретическим путем выполнить анализ конструктивного совершенства предлагаемых разливочных устройств промежуточных ковшей МНЛЗ.
Мощность электромеханического или силовые параметры гидравлического приводов стопорной системы промежуточного ковша в соответствии с расчетными схемами, приведенными на рис. 1 и рис. 2, следует определять из условий преодоления сил сопротивления перемещению подвижной части разливочного устройства и динамических нагрузок при пусках электродвигателя (приведении в действие гидроцилиндра) в процессе отработки ими управляющей команды на подъем (опускание) стопора-моноблока для увеличения или уменьшения объемного расхода жидкого металла, поступающего в кристаллизатор и, в конечном счете, поддержания постоянства в нем уровня расплава.
На подвижную часть стопорного механизма действуют следующие силы:
Gсм – сила тяжести огнеупорного стопора-моноблока;
Gк – сила тяжести консоли;
Gс – сила тяжести несущей стойки;
RА, RВ – силы реакций в направляющих втулках или роликах;
FА, FВ – силы сопротивления перемещению несущей стойки в направляющих втулках (схема 1);
WА,WВ – силы сопротивления перемещению несущей стойки относительно направляющих роликов (схема 2);
FАр – сила Архимеда, выталкивающая стопор-моноблок из расплава;
Fи – сила инерции, действующая на подвижную часть системы в момент начала ее движения;
Fп – сила, развиваемая приводом стопорной системы (гидроцилиндром или винтовым механизмом) при преодолении технологических и инерционных нагрузок.
Из приведенного перечня силы тяжести составных элементов подвижной части стопорной системы (Gсм, Gк, Gс), Архимедова сила FАр и сила инерции Fи подлежат предварительному расчету с учетом заданных геометрических и скоростных параметров разливочных устройств обоих типов.
Силу Архимеда определяют по формуле из раздела гидравлики

где dм – диаметр поперечного сечения огнеупорного стопора-моноблока;
lзаг – длина части стержня стопора, заглубленной в жидкую сталь;
pс – плотность жидкой стали;
g – ускорение силы тяжести.
При поступательном перемещении все ускорения подвижных элементов стопорного устройства одинаковы, поэтому силы инерции этих элементов составляют систему параллельных сил, направленных в одну сторону. Такую систему можно привести к равнодействующей силе, определяемой по формуле

где М – масса подвижной части стопорной системы;
ас – ускорение центра масс.
Линия действия равнодействующей силы инерции в этом случае проходит через центр масс, координаты которого в плоской системе определяют по формулам:

В этих выражениях xi , yi, mi соответственно координаты центров масс и массы составных элементов подвижной части механизма разливочного устройства (огнеупорного стопора-моноблока, консоли и несущей стойки).
Ускорение центра масс определяют из заданных на проектирование параметров – скорости перемещения стопора и времени реакции системы на управляющий сигнал. По опыту эксплуатации стопорных устройств можно принять максимальную скорость перемещения стопора vc равной 100 мм/с, а время реакции привода
= 20 мс. Тогда ускорение центра масс подвижной части стопорного механизма составит
.
Для нахождения силы Fп, действующей на консоль со стороны привода при подъеме подвижной части стопорного устройства, необходимо составить три уравнения для плоской системы сил: суммы проекций сил на оси X, Y и уравнение моментов сил относительно точки В.
Система уравнений для первой конструктивной схемы стопорного устройства.


Рис. 3. Действующие физические модели исследуемых стопорных систем с электромеханическим (а) и гидравлическим (б) приводами
В соответствии с рекомендациями работы [7] можно принять

Подставляя значения FА и FВ в систему уравнений, после ее решения получаем искомую силу Fп для первого варианта стопорного устройства.
Система уравнений для второй конструктивной схемы стопорного устройства.

Подставляя в систему уравнений значения WА и WВ, после ее решения получаем искомую силу Fп для второго варианта стопорного устройства.
Найденные значения Fп позволяют рассчитать параметры приводов стопорной системы.
При заданном давлении p, развиваемом насосом маслостанции, диаметр поршня приводного гидроцилиндра составит

Тогда требуемый расход рабочей жидкости, подаваемой в полость гидроцилиндра при работе стопорной системы в автоматическом режиме, получают из выражения


Рис. 4. Контрольно-измерительная схема, применяемая при контроле энергосиловых параметров физических моделей стопорных систем
В случае применения электромеханического привода требуемый крутящий момент, развиваемый на винте механизма, определяют по формуле

Мощность приводного двигателя

Угловая скорость винта c шагом витков s должна составлять

Необходимое передаточное число редуктора, связывающего винт с валом приводного двигателя с частотой вращения nдв,

Сила, которую разливщик должен приложить к рычагу стопорного механизма при переходе в ручной режим работы стопорной системы, составит:
при наличии реечной передачи
;
при наличии серьги
.
В этих выражениях
соответственно радиус делительной окружности зубчатого сектора и линейные размеры звеньев рычажных механизмов.
Если полученное расчетное значение Fр превысит нагрузку, допускаемую нормами охраны труда, необходимо предусмотреть возможность закрепления на рычаге ручного управления набора противовесов.
Справедливость расчетных значений энергосиловых параметров стопорных систем должна быть подтверждена экспериментальными данными. Учитывая экстремальные условия эксплуатации сталеразливочного оборудования и связанные с ними трудности использования контрольно-измерительных средств оценки силового нагружения натурного образца стопорного устройства, требуемую информацию о значении и характере нарастания сил технологического сопротивления установили по результатам проведенных лабораторных исследований. С этой целью по полученным зависимостям с учетом рекомендаций работы [8] рассчитали, спроектировали и изготовили два физических аналога (фото на рис.3) стопорной системы промежуточного ковша МНЛЗ, которые в конструктивном отношении в масштабе 1:4 в точности соответствовали реальным образцам исследуемых разливочных устройств с различным типом привода.
В ходе проводившихся лабораторных экспериментов изучали характер изменения усилия, требуемого для перемещения в вертикальном направлении стопора-моноблока, а также оценивали соотношение статических и динамических нагрузок, действующих на привод в различных условиях функционирования разливочной системы.
При моделировании работы исследуемых стопорных механизмов управление приводами их физических аналогов осуществляли с помощью упрощенной следящей позиционной системы, которая замыкалась через датчик положения уровня воды, имитирующей жидкую сталь, в полости модели кристаллизатора.

Рис. 5. Вид сигналов при контроле ускорения (а) и силы, развиваемой приводом модели стопорной системы (б) в процессе ее функционирования
Датчик положения включал группу верхних и нижних неподвижных контактов, размещенных на колодке, жестко закрепленной на внутренней поверхности боковой стенки модели кристаллизатора, и группу подвижных контактов, установленных на поворотном рычаге, один конец которого посредством шарнира связан с колодкой, а второй конец снабжен поплавком. Неподвижные контакты с помощью проводов соединяли с электродвигателем или с катушками гидрораспределителя, подающего рабочую жидкость в полости цилиндра. К подвижным контактам датчика подводили питающее напряжение.
Принцип работы такой системы управления состоял в том, что при изменении уровня жидкости в модели кристаллизатора в большую или меньшую сторону от заданной отметки, поплавок воздействовал на рычаг, при повороте которого происходило замыкание подвижных контактов либо с верхними, либо с нижними неподвижными контактами. От порядка и длительности замыкания указанных контактов зависят направление и продолжительность вращения вала электродвигателя или перемещения штока гидроцилиндра, а, следовательно, и высота подъема стопора-моноблока относительно входного отверстия канала разливочного стакана и объемный расход жидкости, поступающей в модель кристаллизатора. Таким образом, система управления приводом физических аналогов стопорной системы имела дискретную обратную связь, обеспечивающую автоматическое функционирование моделей разливочных устройств.
Для контроля исследуемых параметров разливочных устройств применили измерительную систему (рис.4), включающую тензорезисторный преобразователь, четырехканальный усилитель переменного тока УТ4-1 ТУ 25.06.1377–82, двухкоординатный акселерометр ADXL 210 фирмы ANALOG DEVICES и IBM–совместимый компьютер с установленной на его шине платой L–1250 многоканального аналого-цифрового преобразователя (АЦП) фирмы L – CARD.
Тензорезисторный преобразователь для контроля силы, развиваемой приводом, размещали на промежуточном элементе, связывающем шток гидроцилиндра или ходовой гильзы с концом консоли, а акселерометр, позволяющий фиксировать линейные ускорения в пределах от – 10g до +10g при частоте записи сигнала 1 – 10 кГц, крепили к подвижной стойке. Требуемую частоту опроса акселерометра назначали исходя из условия:

где Т – длительность импульса, составляющая 0,0002 – 0,001 с.
Обработку цифрового представления сигналов, поступающих от тензорезисторного преобразователя и акселерометра, выполняли на ЭВМ в реальном масштабе времени при помощи прикладной программы Power Graph 2.0. В качестве примера на рис. 5 приведен характерный вид регистрировавшихся сигналов. Расхождение расчетных и экспериментальных значений сил, преодолеваемых приводами физических моделей стопорных устройств, не превышало 15%, что свидетельствует о корректности полученных зависимостей для оценки энергосиловых параметров разливочных систем стопорного типа. Работа физических аналогов стопорной системы характеризуется значительными динамическими нагрузками. При этом отношение максимального значения динамической нагрузки к статической достигало 2,5–3,2.
Наблюдавшиеся значительные пульсации контролируемых параметров стопорной системы (ускорений и сил) свидетельствуют о наличии в ней механических колебаний, вследствие действия переменных нагрузок и упругости звеньев механизма перемещения стопора-моноблока. Такие колебания, по данным работы [6], отрицательно сказываются на качестве автоматического регулирования объемного расхода жидкой стали, поступающей из промежуточного ковша в кристаллизатор. Таким образом, результаты теоретических и лабораторных исследований позволили разработать методику расчета энергосиловых параметров стопорных систем промежуточных ковшей МНЛЗ и могут служить основой для их дальнейшего совершенствования.
Библиографический список:
1. Дюдкин Д.А. Качество непрерывнолитой стальной заготовки. – К.: Техніка, 1988. – 253 с.
2. Теория и практика непрерывного литья заготовок / А.Н. Смирнов, А.Я. Глазков, В.Л. Пилюшенко и др. – Донецк: НОРД компьютер, 2000. – 363 с.
3. Еронько С.П., Быковских С.В. Разливка стали: Технология. Оборудование. – К.: Техніка, 2003. – 216 с.
4. Изучение условий службы огнеупоров в затворах новых конструкций промежуточных ковшей МНЛЗ / А.А. Кортель, А.Л. Дурмашкин, Б.А. Петров и др.// Огнеупоры. – 1990. – № 10. – С. 33 – 37.
5. Эффективность разливки стали на МНЛЗ при использовании промежуточных ковшей с шиберными затворами / М.Н. Анюхин, Ю.В. Ярыгин, В.М. Гаркуша и др. // Сталь. – 1995. – № 9. – С. 25 – 28.
6. Батаргин В.Г., Чумаков С.М. Новая система автоматического поддержания уровня металла в кристаллизаторе с использованием электромеханического привода // Сталь. – 1998. – № 1. – С. 22 – 25.
7. Кіницький Я.Т. Теорія механізмів і машин. – К.: Наукова думка, 2002. – 660 с.
8. Еронько С.П., Быковских С.В., Ошовская Е.В. Расчет и конструирование оборудования для внепечной обработки и разливки стали. – К.: Техніка, 2007. – 344 с.
© Еронько С.П., Ошовская Е.В., Орлов И.А., Бабенко В.С., 2010