Проектные решения реконструкции сталеплавильного производства
Калинович А.В.ПрАО «Донецксталь»-металлургический завод»УДК 669.18
Целью технического перевооружения сталеплавильного производства ПрАО «Донецксталь»- металлургический завод является замена устаревшего мартеновского производства стали, характеризующегося высокими энергетическими и материальными затратами на производство, большими выбросами загрязняющих веществ в атмосферу, современным электросталеплавильным.
По сути предполагается создание нового электросталеплавильного комплекса в составе дуговой сталеплавильной печи ДСП-150, комплекса внепечной обработки стали и 100% непрерывной разливкой стали в существующем здании мартеновского цеха.
Сложность и основная отличительная черта данного проекта по отношению к аналогичным является выполнение всех реконструктивных работ в условиях действующего производства с минимальным сокращением объемов выпуска стали. В связи с этим все работы по реконструкции сталеплавильного производства осуществляются с определенной этапностью согласно «Основных технических решений», разработанных институтом «Гипросталь» (г.Харьков).
В рамках первого этапа в 2008 году были демонтированы две из шести мартеновских печей, начата подготовка площадки под строительство. Заключен контракт с немецкой фирмой Siemens VAI Metals technologies GmbH на поставку электросталеплавильной печи ДСП-150 с системой газоочистки. Отличительной конструктивной особенностью электропечи является возможность ее работы на различных видах сырья – металлическом ломе, жидком чугуне и железе прямого восстановления (ПВЖ) в различных соотношениях, что позволяет гибко реагировать на изменения рынка сырья. При этом жидкий чугун будет заливаться при помощи желоба особой конструкции через рабочее окно электропечи.
Окончание работ и ввод в эксплуатацию пускового комплекса ДСП-150 планируется в мае 2012года. В рамках пускового комплекса предусмотрено строительство минимально необходимого количества объектов для обеспечения производства 700 тыс. т стали в год, что соответствует производительности существующей установки непрерывной разливки стали (УНРС).
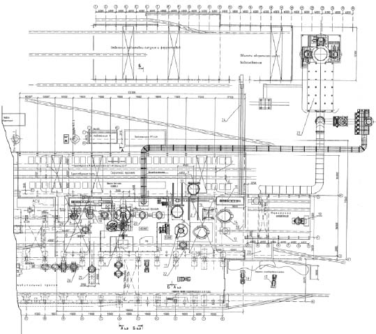
В состав пускового комплекса войдут (рис. 1):
- часть нового здания электросталеплавильного цеха (ЭСПЦ) в составе плавильного и скрапного пролетов;
- собственно дуговая сталеплавильная печь ДСП-150 со вспомогательными помещениями и системами;
- подъемно-транспортное оборудование;
- система хранения, дозирования и подачи ферросплавов и сыпучих материалов;
- система аспирации и газоочистка ДСП-150;
- новый шихтовый двор с организацией отделения приема, хранения и подготовки ферросплавов и сыпучих материалов;
- реконструируемая подстанция 220 кВ и новая подстанции 110/35 кВ.

Рис. 1 - План размещения ДСП-150 в здании сталеплавильного цеха филиала «Металлургический комплекс» ПрАО «Донецксталь»-МЗ»
Поскольку новая ДСП-150 будет располагаться на площадях существующего мартеновского цеха, принято решение о демонтаже 1/3 части цеха. Каркас новых плавильного и скрапного пролетов будут примыкать к оставшейся части цеха. Это позволяет вести строительные работы не прекращая выплавку стали на оставшихся 4х мартеновских печах.
В бетонные конструкции будет уложено около 9000 м3 бетона, на монтаж каркаса здания потребуется около 4000 тонн металлоконструкций и 1500 тонн на рабочую площадку и различные помещения.
Для новых пролетов цеха будет изготовлено и новое грузоподъемное оборудование:
- два литейных крана г/п 275+70/16т (ОАО «Азовмаш», г.Мариуполь);
- три мостовых мульдо-магнитных крана г/п 40/15т (Частное АО «Зуевский энергомеханический завод, г.Зугрэс».
Основным производителем нестандартизированного оборудования (скраповозы, завалочные бадьи, установки разогрева сталеразливочных ковшей и пр.) выбран ЗАО «Новокраматорский машиностроительный завод», г.Краматорск.
Вторым этапом реконструкции сталеплавильного производства предусматривается демонтаж оставшихся четырех мартеновских печей и строительство на их месте новой слябовой МНЛЗ производственной мощностью 1,5 млн.т/год.
Для реализации второго этапа необходимо будет выполнить ряд мероприятий по развитию соответствующей инфраструктуры:
- завершение строительства нового кислородного блока КдА-25/25 (ОАО «Криогенмаш, Россия);
- развитие ломоподготовки с вводом дополнительных мощностей по переработке лома;
- развитие ж/д и автомобильной развязок.
После ввода в эксплуатацию новой слябовой МНЛЗ производство стали в ДСП-150 будет увеличено до 1,5 млн. т в год.
В заключении можно сказать, что техническое перевооружение сталеплавильного производства даст возможность улучшить технико-экономические показатели работы всего предприятия, решить экологические проблемы, сократив выброс пыли в атмосферу в 3 раза, увеличить объем и улучшить качество выплавляемого металла с применением самых передовых методов ведения сталеплавильного производства.
© Калинович А.В., 2011