Непрерывная разливка стали в работах Донниичермета
Дюдкин Д. А.
ДонНТУ
Лаборатория непрерывной разливки стали была организована в 1974-1975 г.г. с приходом в Донниичермет автора настоящей статьи в качестве заместителя директора по научной работе.
Практической базой для развития основ и совершенствования процесса НРС в работах лаборатории оставалась УНРС Донецкого завода, а с 1977 года – криволинейная МНЛЗ завода "Азовсталь" [1]. В дальнейшем исследования велись и на других заводах. Следует отметить, что уже на первых этапах освоения криволинейных МНЛЗ стало ясно, что металлоёмкость этого типа машин существенно возрастает, скорость разливки, вопреки ожиданиям, остаётся на прежнем уровне, но появляются специфические проблемы обеспечения качества металла. Поэтому этот тип МНЛЗ в дальнейшем претерпевает существенные конструктивные изменения.
В данной статье мы уделим внимание только тем работам Донниичермета, которые были уникальны в своё время и, вследствие их значимости, остаются в багаже используемых знаний и в настоящее время. При этом, не имея возможности подробно останавливаться на каждой разработке, мы ограничимся аннотацией и ссылкой на соответствующую публикацию.
Кристаллизация и неоднородность неперерывнолитой заготовки
Выполнены исследования скорости кристаллизации и неравномерности фронта затвердевания по поперечному сечению и высоте формирующейся заготовки на вертикальной и криволинейной МНЛЗ путём ввода радиоактивного изотопа и серы в жидкую фазу и последующего снятия радиограмм и серных отпечатков с продольных и поперечных темплетов [2].
Исходя из оценки неравномерности фронта затвердевания вследствие воздействия струйно-циркуляционных потоков выполнено скрупулёзное исследование химической неоднородности на характерных участках по специальной методике. Анализ содержания элементов выполнялся с переменным шагом по сечению заготовки:

В результате исследования выявлена зональная химическая неоднородность в слябовой непрерывнолитой заготовке при повышенной интенсивности процесса. Определено влияние основных теплофизических параметров на степень развития ликвации. Обоснованы теоретические положения о природе химической неоднородности, определены пути её снижения [3].
Кинетика продвижения фронта затвердевания
С использованием уникального, высокоточного теневого ультразвукового метода исследовали кинетику продвижения фронта кристаллизации на модельном сплаве Bi–Sn. Характер кривых образования твёрдой фазы, полученных в многочисленных экспериментах, свидетельствует о прерывистом (с остановками) характере кристаллизации, а не монотонно-последовательном.
С учётом получения экспериментальных данных выполнены исследования промышленного непрерывнолитого металла с введенным радиоактивным изотопом. Изучение изменения концентрации изотопа (по результатам фотометрии), распределения C, S, P, а также скорости кристаллизации и твёрдости в одном и том же сечении, подтвердило периодичность продвижения фронта затвердевания в процессе кристаллизации слитка вне зависимости от структурных зон.
Количественная оценка флуктуаций физико-химических характеристик промышленного металла показала, что в условиях эксперимента, полосчатая неоднородность вследствие изменения темпа продвижения фронта затвердевания несоизмеримо мала по сравнению с зональной неоднородностью и поэтому на современном этапе не требует каких-либо мероприятий для её уменьшения [4].
Непрерывная разливка с использованием промежуточного кристаллизатора
В Донниичермете разработан и опробован неоднократно способ непрерывной разливки металла с применением промежуточного кристаллизатора (теплообменника). При этом способе водоохлаждаемая медная плита (или плиты) располагается наклонно между промежуточным ковшом и кристаллизатором. Струя из промковша поступает на медную плиту (или в раствор между плитами), проходя по которой металл частично затвердевает и поступает в кристаллизатор.
Для обеспечения непрерывного схода образующейся корки промежуточному теплообменнику с помощью вибратора сообщаются колебания. Исследования, проведенные при отливке заготовки 0,15x1,2 м2, показали, что глубина жидкой фазы сокращается на 24-27 %. При этом установлено, что на расстоянии 0,4-0,6 м от верха непрерывноотливаемой заготовки скорость затвердевания остаётся на уровне обычной, а на более низких горизонтах формирование слитка идёт быстрее. Величина константы затвердевания увеличивается до 0,033 м/мин0,5.
Расчётом установлено, что теплоотвод в теплообменнике составлял в среднем 3,14x104 Дж/кг, что соответствует охлаждению металла на 38oС. Твёрдометаллические корки, образующиеся на промежуточном кристаллизаторе, попадая в жидкую лунку заготовки, в силу их большей плотности перемещаются вниз, заполняя сердцевину заготовки.
Исследования проводились на сталях ШХ15, 60Г, Ст.3. Оценка структуры по серным отпечаткам после травления шлифов реактивами Обергоффера и Розенгайна показали, что зона равноосных кристаллов увеличивается в 2-3 раза. Изменяется характер поступающей массы металла в основной кристаллизатор – гасится кинетическая энергия струи на промежуточном кристаллизаторе, струя становится плоскообразной. В результате интенсивность гидродинамических потоков резко падает, в три раза снижается неравномерность фронта затвердевания.
Вследствие изменения морфологии затвердевания конвективные потоки получают слабое развитие. Сокращение глубины жидкой фазы и устранение острого её окончания приводит к рассредоточению примесей по объёму равноосной зоны разориентированных дендритов. Осевая ликвация отсутствует! При этом скорость разливки в пределах существующей металлургической длины может быть увеличена на 36 % [5].
Представляется, что на этом принципе может быть создано более технологичное оформление осуществления способа для использования его в текущем производстве.
Электромагнитное воздействие на жидкую сталь
В Донниичермете, начиная с 70-х годов, проводились эксперимен-тальные исследования по поиску новых свойств электромагнитного поля. Эти исследования привели к обнаружению новых физических закономерностей – индукции электрического тока в проводнике, движущемся в электростатическом (электрическом) поле. В отличие от электромагнитной индукции Фарадея (1831 г.) – возникновение электрического тока в проводнике, движущемся в магнитном поле, новый вид индукции тока в проводнике, имеющей электродинамическую природу, был классифицирован как индукция электродинамическая. В последствии обнаруженное новое явление было признано научным открытием. На основе полученных новых знаний провели экспериментальные исследования по электрофизическому воздействию на струю жидкого металла. Электрическое поле обеспечивалось кольцевым электродом, охватывающим струю металла и соединённым с источником высокого электрического напряжения. В этом случае струя представляет собой движущийся проводник в электрическом поле. В соответствие с электродинамической индукцией в струе металла возбуждается электрический ток. Его действие обнаруживается в активизации центров кристаллизации, вследствие снижения межфазного натяжения, измельчении структуры отливки и ускорении кристаллизации при той же интенсивности внешнего теплоотвода [6].
В другом варианте на погружном стакане промежуточного ковша монтировался соленоид, через который пропускался электрический ток. Жидкий металл проходит через неоднородное по длине осевое магнитное поле и далее поступает в кристаллизатор. Соленоид компактен и не создаёт каких-либо трудностей при разливке. Воздействие на расплав магнитным полем способствует уменьшению критического радиуса зародыша, т.е. также приводит к измельчению зерна. Обработка расплава магнитным полем нарушает равновесие на границе металл–неметаллическое включение, способствуя их выделению и удалению. Бегущее магнитное поле, помимо указанных эффектов, вызывает некоторое "подтормаживание" струи расплава. Снижение энергии струи уменьшает интенсивность струйно-циркуляционных потоков в кристаллизаторе.
Лабораторные исследования этих способов проводились при отливке слитков 25-27 кг. Опытно-промышленные исследования проведены на МНЛЗ МК "Азовсталь". Получены положительные результаты [7].
Разработан комплексный вариант, при котором воздействие на металл на выходе из разливочного ковша осуществляется электрическим полем, а на выходе из промежуточного ковша – бегущим магнитным полем. Представляется, что это наиболее эффективный способ.
В Донниичермете разработано и в значительной части внедрено ряд решений по стабилизации условий формирования заготовки в кристаллизаторе, в том числе рациональные конструкции погружных стаканов, управлению процессом с целью повышения качества поверхности и внутренней структуры.
В этой связи выполнен анализ термических напряжений и растягивающих деформаций в наружных и внутренних слоях заготовки в области окончания затвердевания на МНЛЗ МК «Азовсталь», вследствие повышенной дефектности слябов по осевым трещинам. Был разработан новый режим охлаждения, который отличался повышенной интенсивностью (с 0,47-,53 до 0,65-0,75 л/кг) и продлением зоны охлаждения. Опытно-промышленное опробование этого режима позволило уменьшить количество заготовок с осевыми трещинами в 1,5 раза и существенно снизить развитие всех видов дефектов макроструктуры (по средней и максимальной оценке на 1,5-2 балла) [2].
При исследовании кристаллизации и неоднородности непрерывнолитой заготовки было показано, что ликвация в осевой зоне зависит от глубины жидкой фазы в процессе разливки. Для условий МНЛЗ МК "Азовсталь" было просчитано и показано, что уменьшение толщины отливаемой заготовки с 250 до 200 мм и увеличении скорости разливки для сохранения производительности на прежнем уровне, приведёт к сокращению протяжённости жидкой фазы в 1,5 раза.
Такое решение способствует улучшению качества металла, а при прокатке слябов уменьшенной толщины увеличится производительность стана на 5-15 % и снизятся энергозатраты при прокатке и нагреве заготовок. На первом этапе в опытно-промышленных условиях на МК "Азовсталь" уменьшили толщину заготовки до 220 мм и получили подтверждение представленных обоснований.
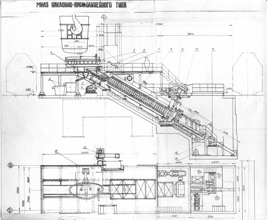
Наклонно-прямолинейная МНЛЗ
В период 1980-1984 гг. Донниичермет, Гипросталь и Донецкий металлургический завод (ДМЗ) разработали, спроектировали и изготовили МНЛЗ наклонно-прямолинейного (НП) типа (авторские свидетельства СССР: 930821, 933213, 944766, 959336, 1201049 и др.), не имеющего аналогов в мировой металлургии.
Опытный образец слябовой НП МНЛЗ, с отливкой промышленных сечений 150x650 мм, был построен в 1982-1984 гг. в мартеновском цехе ДМЗ рядом с промышленной вертикальной машиной (Рис. 1).

Рис. 1. Опытная МНЛЗ наклонно-прямолинейного типа для отливки слябовой заготовки сечением 150x500x650 мм
Технологические и конструктивные особенности:
- широкие стенки кристаллизатора расположены вертикально, ме-талл в него подаётся через погружной глуходонный стакан с двумя выходными отверстиями;
- двухсинусоидальный режим качания;
- прямоточные плоскофакельные форсунки с отражателем;
- одноприводная тянущая система с вертикальным расположением привода;
- АСУ ТП для автоматического управления уровнем металла в промковше и кристаллизаторе, частотой качания кристаллизатора, расходом охладителя на вторичное охлаждение заготовки в зависимости от скорости разливки, температуры поверхности заготовки и металла в промковше.
НП МНЛЗ обладает следующими преимуществами по сравнению с действующими МНЛЗ:
- вертикальными: меньшей высотой и ферростатическим давлением на оболочку заготовки и поэтому уменьшенными капитальными и текущими затратами при создании условий для повышения качества заготовки;
- криволинейными: меньшим весом и мощностью технологического оборудования, отсутствием деформации заготовки в машине, простотой и надёжностью настройки оборудования по технологической оси, что снижает капитальные и текущие затраты и повышает качество заготовки;
- горизонтальными: большим сечением отливаемых заготовок и производительностью, отсутствием узла сочленения металлоприёмника и кристаллизатора, что снимает ограничения по сечению отливаемых заготовок и продолжительности разливки.
Таблица 1. Основные характеристики опытной НП МНЛЗ

Компактность, малая высота и габариты, пониженные металло-, энерго- и капиталоёмкость, уменьшенные текущие затраты на НП МНЛЗ делают целесообразным строительство таких МНЛЗ в ограниченных габаритах действующих цехов и установку их в новых цехах, уменьшая размеры участков непрерывной разливки стали, сокращая количество вспомогательного оборудования и текущие затраты.
Создание НП МНЛЗ потребовало решения целого комплекса технологических и конструктивных задач.
Специфические условия данной МНЛЗ потребовали разработки специальной конструкции погружного стакана в зависимости от выбора параметров его использования. Это было достигнуто путём гидравлического моделирования потоков в наклонном кристаллизаторе при варьировании конструктивных параметров глуходонных погружных стаканов по конфигурации, размерам и расположению выпускных отверстий. При этом было необходимо выбрать место ввода погружного стакана и его заглубление в металл. Было испытано 10 типов погружных стаканов, оптимальными признаны 2 варианта, которые были "допущены" для практического использования. Кварцевые погружные стаканы изготавливались на Подольском ог-неупорном заводе.
Тепловые условия на мениске в области нижней и верхней узких граней заготовки несколько отличны. Для обеспечения равнозначных свойств шлакообразующих смесей (ШОС) по всему периметру были испытаны 14 составов с варьированием их расходов в пределах 0,95…2,6 кг/т. Для приготовления смесей использовались материалы: цемент, нефелин, плавиковый шпат, силикатная глыба, криолит, окись бора, аморфный графит. Исследования привели к выработке оптимального состава ШОС, отвечающего всем требованиям.
Выработанные решения проверены в широком диапазоне скоростей разливки до 1,5 м/мин и обеспечивали стабильность технологического процесса.
В результате проведенных исследований пришли к выводу, используя специфику опытной машины, о целесообразности более интенсивного охлаждения формирующейся заготовки, чем на существующих вертикальных и криволинейных МНЛЗ. При этом было установлено, что увеличение интенсивности охлаждения до 1,2…1,8 л/кг благоприятно влияет на качество внутренней структуры и никак не влияет на качество поверхности.
Из новых конструктивных решений вполне приемлемыми и эффективными показали себя следующие:
- выдача заготовок производится на участок под технологической линией, что сокращает длину машины и занимаемую площадь;
- транспортировка заготовок производится на узкой грани, что уменьшает габариты и вес транспортных рольгангов.
Следует остановиться ещё на двух моментах. Большая ось прямоугольной поверхности металла в кристаллизаторе, как известно, равна

где b – размер широкой грани заготовки.
При отливке заготовок сечением 150x650 мм а = 1300 мм. Казалось бы, это положение для слябовых машин является недостатком, например, в таком выражении: "Увеличение площади мениска металла и его наклонное положение относительно траектории движения кристаллизатора способствует увеличению теплопотерь с поверхности металла и изменению условий формирования оболочки слитка…"
Что касается " теплопотерь с поверхности…", то этот вопрос решается достаточно просто теплоизолирующими ШОС. А что касается "изменений условий формирования…" – это правильно, но эти изменения полностью устраняют возможность появления продольных трещин на поверхности заготовки! И ещё один важный момент – снижение скорости движения металла, примыкающего к мениску, по сравнению со скоростью вытягивания заготовки (в нашем случае в 2 раза) способствует более эффективной миграции неметаллических включений и ассимиляции их шлаком. Мы убедимся в этом при анализе качества отлитого металла. Следовательно, увеличение площади мениска и "его наклонного положения" является не недостатком, а достоинством новой машины.
В связи с вертикальной установкой широких граней заготовки и наклонным расположением формирующегося слитка, на первый взгляд, возникают условия для скопления неметаллических включений у верхней грани слитка. Этот вопрос подробно рассматривается в работе [2], где на основе анализа опять таки специфических конвективных потоков металла в кристаллизаторе и в зоне вторичного охлаждения скопление неметаллических включений у верхней грани практически исключено. Это также подтверждается анализом качества отлитого металла.
Результаты исследований, проведенных на НП МНЛЗ
Итак, в 1985-1986 гг. проведены обширные исследования по освоению технологии непрерывной разливки углеродистых и низколегированных марок стали на НП МНЛЗ при отливке заготовок сечением 150x500x650 мм со скоростью 0,8-1,3 м/мин. При анализе качества металла, полученные заготовки сравнивались с заготовками сечением 150x1000x1200 мм, отлитыми со скоростью 0,6-0,8 м/мин на промышленной вертикальной МНЛЗ из металла одной плавки (Рис. 2).

Рис. 2. Слябы, полученные на опытной НП МНЛЗ
Результаты исследований 50 опытных плавок рассматривались и обсуждались совместно с ИНМТ ЦНИИчермета. Протокол от 10-15 октября 1986 г., Донецк-Москва, подписано директором ИНМТ В. А. Синельниковым и зав. отделом НРС ЦНИИЧМ Паршиным В. М. В протоколе отмечается следующее.
Достигнута стабильность технологического процесса при рабочей скорости разливки (1,0…1,25) м/мин. Отработаны конструкции погружных стаканов, кристаллизатора, механизма качания, поддерживающих и охлаждающих устройств и другого технологического оборудования.
Установлено, что качество поверхности и внутренней структуры опытного металла удовлетворяет требованиям ОСТ 14-4-73 на литые слябы.
Следует отметить, что на всём массиве опытных заготовок полно-стью отсутствовали продольные трещины, что можно объяснить осо-бенностями условий формирования слитка при наклонном расположении кристаллизатора. Незначительные поперечные трещины выявлены на двух слябах, что связано с грубыми отклонениями в состоянии углов кристаллизатора.
Макроструктура заготовок с наклонной машины характеризуется более развитой зоной равноосных кристаллов (на 7–12 мм), меньшей осевой рыхлостью (на 0,5–2,0 балла), меньшей химической неоднородностью (0,5–1,5 балла). Послойный химический анализ металла осевой зоны показал снижение ликвации серы и углерода, соответственно, в 1,5 и 2 раза, несмотря на более высокую скорость разливки.
Петрографическим анализом установлена идентичность природы и формы неметаллических включений. Среднее по сечению и у верхней грани содержание неметаллических включений уменьшается, соответственно, на 24 и 25 % по сравнению с заготовками, отлитыми на вертикальной машине со скоростью (0,6…0,8) м/мин.
Механические свойства полученного из опытных заготовок листового проката отвечают требованиям соответствующих ГОСТов.
После обсуждения результатов исследований совещание отметило, что технологический процесс непрерывной разливки металла на НП МНЛЗ достаточно отработан, основные узлы и механизмы работоспособны, качество получаемых заготовок удовлетворяет требованиям соответствующих стандартов.
К этому можно добавить, что НП МНЛЗ могут применяться для отливок всех типов заготовок, при этом отмечается снижение металлоёмкости в 1,5–2 раза, энергоёмкости на 30–40 % по сравнению с вертикальными и криволинейными МНЛЗ. Компактность, малая высоты и площадь размещения облегчают их строительство в действующих цехах. Простота конструкции обеспечивает высокую эксплуатационную надёжность [8].
Решения о создании опытно-промышленной двухручьевой НП МНЛЗ
3.07.1986 г. Совещание у заместителя Председателя Комитета тов. Ефименко С. П.
(Протокол № СЕ-23)
О состоянии исследований по разработке и созданию МНЛЗ наклонного типа.
Присутствовали представители от ГКНТ, Госплана СССР, Минчермета СССР, Минчермета УССР, Минтяжмаша, Госкомизобретений, ЦНИИчермета, Донниичермета (Дюдкин Д. А.), Гипростали (Горяйнов Г. Е.), ВНИИметмаша (Целиков А. А.).
Протокол содержит поручения участвующим организациям, связанные с созданием опытно –промышленной наклонно – прямолинейной МНЛЗ в кратчайшие сроки.
16.03.1987 г. Совещание у Министра тов. Колпакова С. В.
(Минчермет СССР, Протокол № 63)
В ходе обсуждения состояния вопроса о создании новой конструк-ции МНЛЗ наклонно-прямолинейного типа отмечено следующее:
1. Донниичерметом … разработано ТЛЗ-1.10-20-79-86 и утверждено Минчерметом СССР 16.06.86 г. на проектирование НП МНЛЗ.
2. Гипросталью выполнено ТЗ на разработку опытно-промышленной НП МНЛЗ. ТЗ рассмотрено и получены положительные заключения ЦНИИчермета, ВНИИметмаша, ДМЗ, НПО "Черметмеханизация", ДЗМО, Минчермета УССР.
После обсуждения принято решение:
1. С целью разработки базового образца нового поколения МНЛЗ в слябовом варианте, разработки промышленной технологии и отработки оборудования в промышленных условиях создать конструкцию двухручьевой НП МНЛЗ для установки в мартеновском цехе ДМЗ с целью отливки 300-400 тыс. тонн стальных заготовок в год сечением 150x200x1000x1200 мм при разливке металла из 170-тонного ковша… со сроком выполнения в 1990 г. (общие затраты примерно 15 млн. руб.).
2. Заказчиком утвердить ДМЗ. Ответственный – директор завода тов. Следнев В. П.
3. Назначить главными конструкторами НП МНЛЗ от Донниичермета – заместителя директора тов. Дюдкина Д. А., от НПО "Черметмеханизация" – зав. прок. отделом тов. Алексеенко, от Гипростали – нач. сталепл. отдела – тов. Хоменского.
4. Минчермету УССР /т. Плискановскому/ и НПО "Черметмеханизация" /т. Урчу кину/ обеспечить изготовление нестандар-тизированного оборудования … с окончанием в 1988-1989 гг.
27.04.1988 г., г. Москва. Совещание по вопросу проектирования и строительства НП МНЛЗ в мартеновском цехе ДМЗ.
(Протокол утверждён Министром С. В. Колпаковым)
На совещании рассмотрен ход выполнения протокола Министра т. Колпакова С. В. от 16.03.87 № 63.
7. НПО "Черметмеханизация" (т. Ткачёву) в I полугодии 1990 г. изготовить и поставить оборудование НП МНЛЗ в полном соответствии с ТЗ Гипростали.
8. Контроль за исполнением возложить на ГПО "Южметаллургпром" (т. Плискановского), Черметпроект (т. Борисова), Главмашчермет (т. Высина). Проверку протокола проводить один раз в месяц.
28.06.1988 г., г. Днепропетровск. Техническое совещание по рассмот-рению и утверждению техпроекта на МНЛЗ у главного инженера ГПО "Южметаллургпром" т. Поживанова
(Протокол утверждён Зам. Министра ЧМ СССР С. Т. Плискановским)
Однако, в связи с событиями в конце 80-х – начале 90-х годов в СССР история создания опытно-промышленной НП МНЛЗ приостанавливается. Намеченные решения не доведены до завершения.
Библиографический список:
1. Непрерывная разливка стали / В. В. Лепорский, Д. А. Дюдкин, О. В. Носоченко и др. – Донецк: Донбасс, 1982. – 64 с.
2. Дюдкин Д. А. Качество непрерывнолитой стальной заготовки. – К.: Тэхника, 1988. –253 с.
3. Дюдкин Д. А. О природе химической неоднородности непрерывнолитого слитка. –Изв. Вуз. Черная металлургия. 1983, № 1, С. 41-46.
4. Дюдкин Д. А. Кравченко Д. Ф. Комаров А. А. Исследование кинетики продвижения фронта затвердевания. – Изв. АН СССР, Металлы, 1983, № 3, С. 71-74.
5. Улучшение качества заготовки, полученной на МНЛЗ с промежу-точным кристаллизатором / Д. А. Дюдкин, В. М. Онопченко, Л. А. Тауб и др. // Сталь. – 1979. – № 9. С. 673-674.
6. Дюдкин Д. А. Улучшение макроструктуры литого металла путем электрофизического воздействия. // Сталь. 1995. № 8. С. 28-30.
7. Повышение качества литого металла обработкой расплава магнит-ным полем / Д. А. Дюдкин, В. С. Шкляр, О. В. Носоченко, Ю. А. Пашковский. // Процессы литья. 1996, № 3. С. 41-45.
8. Разливка стали на наклонно-прямолинейной МНЛЗ /Д. А. Дюдкин, С. Т. Плискановский, Ф. Е. Долженков, В. П. Следнев, Г. Е. Горяйнов // Сталь. 1992. № 6. С. 5-7.
© Дюдкин Д. А., 2010