Внедоменная десульфурация чугуна
На современных металлургических предприятиях обязательным является наличие отделений внедоменной десульфурации чугуна (ОДЧ), которые позволяют решать следующие задачи:
- глубокая десульфурация чугуна для выплавки низкосернистых марок стали;
- устранение периодического повышения содержания серы в чугуне (до 10 – 15% общего его объема), а также последствий нарушений хода доменных печей, промывок и др.;
- десульфурация всего количества выплавленного чугуна при работе доменных печей на шлаках пониженной основности с целью снижения расхода кокса.
В промышленных масштабах для десульфурации чугуна в разное время широко использовали порошкообразную известь, кальцинированную соду, порошкообразный карбид кальция и магниевые реагенты.
Известь является наиболее дешевым реагентом, который доступен в практически неограниченных количествах.
Основными его недостатками при использовании в качестве десульфурации чугуна являются:
- высокие расходы десульфуратора (до 10 – 15 кг/т чугуна);
- большие потери чугуна со шлаком, который удаляется из ковша после обработки;
- большие потери температуры чугуна.
Кальцинированная сода (Na2CO3) также является сравнительно дешевым реагентом. После обработки чугуна содой шлаки имеют малую вязкость, в результате чего потери чугуна с ковшевым шлаком практически полностью отсутствуют.
Основными недостатками применения кальцинированной соды в качестве десульфуратора чугуна являются:
- ограниченная глубина десульфурации металла при подаче соды в ковш под струю чугуна;
- ресульфурация чугуна после обработки вследствие понижения основности ковшевого шлака в результате разрушения футеровки чугуновозных ковшей в шлаковом поясе;
- ухудшение санитарно-гигиенических условий в цехе;
- большие потери температуры чугуна;
- шлаки с высоким содержанием оксида натрия требуют специальных способов переработки.
Карбид кальция (CaC2) является эффективным десульфуратором чугуна, применение которого позволяет понижать концентрацию серы в металле до 0,005% и менее.
Главными причинами, которые препятствуют широкому использованию карбида кальция в качестве десульфуратора чугуна, являются следующие:
- в странах СНГ порошкообразный карбид кальция в промышленных масштабах не производится;
- дробление карбида кальция на металлургических заводах должно выполняться в инертной атмосфере с использованием оборудования во взрывобезопасном исполнении, чем обусловлена высокая его стоимость;
- интенсивное образование настылей на стенках ковшей и большой объем работ по их очистке;
- ковшевые шлаки после обработки чугуна карбидом кальция требуют специальных способов переработки.
Магний является наиболее дорогостоящим из применяемых промышленностью десульфураторов. Применение магния позволяет понижать содержание серы в чугуне до 0,002 – 0,005%. При этом расходы десульфуратора минимальны. Пыль и ковшевые шлаки не требуют специальных способов очистки и переработки.
Главным недостатком десульфурации чугуна магнием является необхо-димость значительного недолива подаваемых на обработку чугуновозных ковшей. В результате исследований, проведенных Институтом черной металлургии МЧМ СССР в 1980 – 1985 г.г., показано, что при учете сопутствующих затрат при глубокой десульфурации чугуна наименьшие затраты имеют место при использовании магния. При этом затраты, связанные с десульфурацией чугуна, увеличивается в следующей последовательности: магний > карбид кальция > кальцинированная сода > порошкообразная известь.
По этой причине в последние 10 – 15 лет в мире строятся, главным образом, отделения внедоменной десульфурации чугуна магнием или смесями Mg + CaO, Mg + CaC2, Mg + CaO + CaC2. На металлургических предприятиях Украины магний является единственным реагентом, который используется для десульфурации чугуна в промышленных масштабах.
Основные требования к организации процесса десульфурации чугуна магнием обусловлены особенностями физических свойств этого реагента, важнейшие из которых приведены в таблице 8.1.
Таблица 8.1 – Физические свойства магния и железа

Из таблицы видно, что плотность магния значительно меньше плотности чугуна и шлака, в связи с чем необходимо принудительное погружение магния в обрабатываемый металл.
Температуры плавления и кипения магния значительно ниже температур внепечной десульфурации чугуна. Поэтому введенный в металл магний плавится и испаряется. При температурах внепечной обработки чугуна испарение 1 кг магния сопровождается образованием около 5,5 нм3 пара. По этой причине для безопасной обработки необходима рассредоточенная во времени подача диспергированного магния в металл. При обработке чугуна слитковым магнием необходимы мероприятия по ограничению скорости его испарения. При скорости ввода магния 6 – 8 кг/мин подаваемые под обработку 100 – 140-т чугуновозные ковши должны быть наполнены не более чем на 70 – 75% номинальной вместимости.
Ввиду значительного различия атомных радиусов магния и железа растворимость магния в железе и чугуне очень мала. Пар магния практически не растворяется в металле и удаляется из расплава в виде пузырей, у поверхности которых протекают химические реакции между магнием и примесями чугуна. Поэтому эффективная обработка чугуна магнием возможна только при вводе его в расплав на максимально возможную глубину (300 – 400 мм от дна ковша).
Для предотвращения ресульфурации чугуна после обработки из ковша необходимо в кратчайшее время удалить высокосернистый шлак.
На металлургических предприятиях Украины в настоящее время используются следующие способы обработки чугуна магнием:
- обработка слитками пассивированного магния в чугуновозных ковшах;
- регулируемый ввод слиткового магния в чугуновозные ковши с независимой подачей газа в испарительную камеру;
- вдувание гранулированного магния в чугуновозные ковши через погружаемые в металл фурмы с испарительной камерой;
- обработка в чугуновозных ковшах порошковой проволокой со смесью гранулированного магния и пассивирующих добавок;
- обработка в заливочных ковшах продувкой смесью из 20 – 30% гранулированного магния и порошкообразной извести через фурмы с постоянным сечением канала.
Использование продувки смесью гранулированного магния и порошко-образной извести предполагает организацию на предприятии производства высококачественной флюидизированной извести, помол которой ведут с добавлением силиконовых масел, в результате чего резко снижается скорость взаимодействия извести с атмосферной влагой. Требования к химическому и фракционному составу извести, предназначенной для вдувания в чугун вместе с магнием, в соответствии с материалами технического предложения фирмы «ESM» (США) на организацию отделения внедоменной десульфурации чугуна (ОДЧ) в кислородно-конвертерном цехе ОАО «Мариупольский металлургический комбинат им. Ильича» представлены в таблице 8.2.
Таблица 8.2 – Требования к химическому и фракционному составу извести
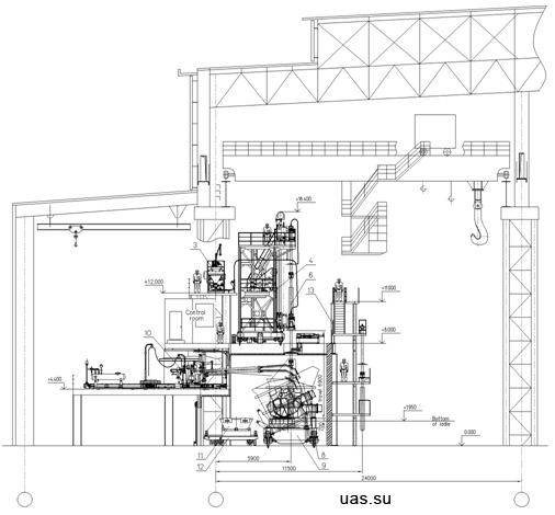
Схема размещения основного технологического оборудования в ОДЧ при обработке металла гранулированным магнием в чугуновозных ковшах показана на рисунке 8.1.
На рисунке 8.2 показана схема размещения оборудования ОДЧ при обработке чугуна гранулированным магнием в заливочных ковшах. Как правило заливочные ковши оборудованы пористыми пробками для подачи в металл азота. При скачивании шлака из ковша по окончанию обработки этот прием позволяет оттеснить шлак от противоположной сливному носку стенки ковша и достичь более полного его удаления.

Рисунок 8.1 – Схема ОДЧ при обработке чугуна гранулированным магнием в чугуновозных ковшах
В современных сталеплавильных цехах обработка чугуна магнием в крупных заливочных ковшах дает возможность проводить десульфурацию чугуна при минимально возможной температуре после удаления из ковша миксерного шлака. При этом глубина ввода магния в металл увеличивается до 3,5 – 4 м. Эти мероприятия способствуют значительному росту степени использования магния для десульфурации чугуна.

Рисунок 8.2 – Схема ОДЧ при обработке чугуна гранулированным магнием в заливочных ковшах
В последние годы на металлургических предприятиях России, Украины, Китая по лицензиям фирм «ESM», «Polisius» и др. введены в эксплуатацию ОДЧ, в которых используется продувка смесью гранулированного магния и порошкообразной извести в чугуновозных и заливочных ковшах. Оборудование современных ОДЧ предусматривает хранение гранулированного магния, по-рошков извести и (или) карбида кальция в отдельных расходных бункерах, раздельное их дозирование с использованием аэрационных питателей и последующее смешивание в пневмотрассе.
Сотрудниками ДонНТУ проанализированы результаты десульфурации чугуна продувкой гранулированным магнием через фурмы с испарительными камерами в 140-т чугуновозных ковшах ОАО «Металлургический комбинат «Азовсталь» и продувкой смесью гранулированного магния и порошкообразной извести в 350-т заливочных ковшах кислородно-конвертерного цеха ОАО «Новолипецкий металлургический комбинат». Показано, что способы десульфурации чугуна, основанные на инжектировании гранулированного магния в расплав в смеси с порошкообразной известью через фурму с постоянным сечением канала и без наполнителя через фурму с испарительной камерой, обеспечивают близкие значения степени использования магния для десульфурации металла. При продувке чугуна магнийизвестковой смесью флюидизированная известь не оказывает существенного влияния на эффективность обработки.